06/08/2017
Representar la complejidad de los espacios interiores de un edificio o las partes internas de una pieza técnica puede ser un desafío. A simple vista, un plano o una vista exterior no siempre revelan los detalles cruciales de la estructura, los materiales o las conexiones ocultas. Para superar esta limitación y ofrecer una comprensión completa, los arquitectos, ingenieros y diseñadores recurren a herramientas gráficas fundamentales: los cortes y las secciones.
https://www.youtube.com/watch?v=0gcJCdgAo7VqN5tD
Estas técnicas de dibujo técnico y arquitectónico son esenciales para visualizar lo que hay dentro, permitiendo una comunicación clara entre todos los involucrados en un proyecto, desde el diseñador hasta el constructor. Su propósito principal es conseguir una mayor claridad en la representación, haciendo visibles esas zonas interiores que de otro modo permanecerían ocultas. Además, son indispensables cuando se necesita acotar dimensiones específicas dentro de estas áreas internas.

Aunque los términos 'corte' y 'sección' a menudo se utilizan de manera intercambiable en algunos contextos, especialmente en el ámbito arquitectónico y de la construcción para referirse a la representación de una 'rebanada' vertical del edificio, es útil entender la distinción o la forma en que se aplican para maximizar la información que brindan los planos.
¿Qué es una Sección en Planos?
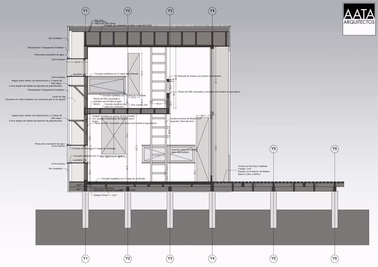
En el dibujo técnico y arquitectónico, una sección es una vista que se obtiene al 'cortar' imaginariamente un objeto o edificio con un plano secante y representar lo que se ve en la superficie de corte y/o detrás de ella. Piénsalo como si tomaras un cuchillo gigante y rebanaras el edificio verticalmente de arriba a abajo. La vista de la sección mostraría la 'cara' de esa rebanada.
Las secciones son particularmente valiosas en arquitectura y construcción. Proveen una vista vertical que revela la estructura interna, la relación entre diferentes niveles, las alturas de techos y pisos, la disposición de escaleras y pasillos, y cómo se conectan los distintos elementos constructivos, como muros, vigas y losas. Son similares a las secciones transversales utilizadas en otras disciplinas para analizar la estructura interna de un material o componente.
Según la información proporcionada, las secciones nos dan una vista de arriba a abajo de la obra, como si se cortara verticalmente. Son fundamentales para los equipos de construcción porque proveen datos críticos sobre los muros y las vigas, facilitando enormemente el trabajo entre diseñadores y constructores. En un proyecto arquitectónico, habrá múltiples secciones que atraviesan el edificio en diferentes puntos para mostrar distintos aspectos de su interior.
¿Qué es un Corte en Dibujo Técnico?
El término 'corte', en el contexto del dibujo técnico para representar interiores, es muy similar a 'sección' y a menudo se utiliza para el mismo propósito: mostrar lo que hay dentro de un objeto o construcción mediante un plano secante imaginario. En algunos ámbitos, se puede usar 'corte' para referirse a una vista que muestra la 'rebanada' completa del objeto, mientras que 'sección' podría enfocarse más específicamente en la superficie de corte o en áreas parciales. Sin embargo, en la práctica arquitectónica, 'corte' y 'sección' vertical son términos casi sinónimos y ambos buscan revelar la estructura interna del edificio en un plano vertical.

Es importante diferenciar este uso del término 'corte' de otro significado común en ingeniería civil y gestión de terrenos, como se menciona en la información proporcionada. En ese contexto, un 'corte' o 'cutting' se refiere a la acción física de excavar o remover tierra o roca para crear un paso (como para una carretera o ferrocarril), acortar una ruta o modificar la pendiente del terreno. Este tipo de 'corte' es una modificación física del paisaje, no una técnica de representación gráfica de un objeto construido. Nuestro enfoque aquí es el 'corte' como herramienta de dibujo.
¿Por Qué Son Tan Necesarias las Secciones y Cortes en la Construcción?
Las secciones (y cortes en este sentido gráfico) no son solo un capricho del diseñador; son una necesidad absoluta para el éxito de cualquier proyecto constructivo. La información proporcionada subraya que un espacio bien diseñado y construido requiere una cuidadosa planificación, y estas vistas detalladas son la base de esa planificación.
Razones clave de su importancia:
- Revelan Detalles Ocultos: Hacen visible la estructura interna, las capas de materiales (aislamiento, revestimientos, etc.), las instalaciones (aunque a menudo se representan en planos específicos) y otros componentes que no se ven desde el exterior o en un plano de planta.
- Permiten Acotar Zonas Internas: Es fundamental poder medir y dimensionar con precisión los elementos dentro de la estructura, como alturas libres, grosores de muros, dimensiones de vigas, etc. Las secciones proporcionan el contexto vertical necesario para estas acotaciones.
- Clarifican Métodos Constructivos: Muestran cómo se unen los diferentes elementos, cómo se apoya la estructura, cómo se resuelven encuentros complejos. Esto es vital para los constructores en obra.
- Mejoran la Comunicación: Sirven como un lenguaje universal entre arquitectos, ingenieros, contratistas y otros oficios. Reducen las ambigumbres y minimizan los errores en la ejecución.
- Facilitan la Coordinación: Al mostrar la superposición de diferentes sistemas (estructura, arquitectura, instalaciones), ayudan a identificar posibles conflictos antes de llegar a la obra.
- Guían el Proceso de Construcción: Junto con los planos de planta, elevaciones y detalles (callouts), las secciones forman el conjunto de documentos gráficos que guían la ejecución del proyecto paso a paso.
La información destaca que arquitectos y equipos de construcción necesitan múltiples vistas de diseño porque cada una proporciona información distinta pero complementaria. Mientras los planos muestran la distribución horizontal, las elevaciones el aspecto exterior, y los callouts detalles ampliados, las secciones ofrecen esa crucial perspectiva vertical interna.
Secciones en Casas Prefabricadas
En el ámbito de las casas prefabricadas, las secciones adquieren una relevancia aún mayor. La naturaleza modular y a menudo innovadora de la construcción prefabricada implica que los detalles de ensamblaje, la composición de los paneles o módulos (capas de aislamiento, estructura interna, acabados) y las conexiones entre ellos son críticos. Las secciones permiten:
- Visualizar la composición exacta de los muros, suelos y techos prefabricados.
- Entender cómo se integra el aislamiento y las barreras de vapor o viento.
- Mostrar los puntos de conexión y anclaje entre módulos o elementos.
- Detallar la estructura interna de cada componente prefabricado.
- Asegurar la correcta alineación y ensamble de los elementos en el sitio.
Una sección bien dibujada de un muro prefabricado, por ejemplo, mostrará la secuencia de materiales desde el exterior al interior: revestimiento exterior, rastrel, barrera impermeable, panel estructural (quizás OSB), aislamiento, estructura de madera o metal, barrera de vapor, y revestimiento interior (pladur, madera, etc.). Esta información es indispensable tanto para la fabricación en taller como para el montaje en obra.
La Revolución BIM en la Generación de Secciones
La tecnología Building Information Modeling (BIM) ha transformado la forma en que se crean y utilizan las secciones en la construcción moderna. Como se menciona en la información, BIM no solo potencia la visualización, sino que fomenta una mejor coordinación y colaboración.

En lugar de dibujar secciones de forma manual o en 2D a partir de planos, con BIM se construye un modelo virtual tridimensional y paramétrico del edificio. Las secciones se generan directamente a partir de este modelo 3D con solo definir el plano de corte. Las ventajas son inmensas:
- Precisión y Coherencia: Un cambio realizado en el modelo 3D (por ejemplo, el grosor de un muro) se actualiza automáticamente en todas las secciones, alzados y planos, eliminando discrepancias y errores costosos.
- Coordinación Mejorada: El modelo BIM integra información de arquitectura, estructura e instalaciones. Al generar una sección, se ven todos los elementos en su posición correcta, facilitando la detección de conflictos (una tubería que choca con una viga, etc.) antes de la construcción.
- Visualización Mejorada: Al partir de un modelo 3D, las secciones pueden tener un nivel de detalle y realismo que facilita la comprensión, incluso para personas sin experiencia técnica.
- Eficiencia: La generación y actualización automática de secciones acelera el proceso de diseño y documentación, permitiendo iteraciones más rápidas.
BIM permite obtener una visión holística e integrada de la propiedad, donde las secciones son simplemente una 'vista' más de un modelo complejo y coordinado. Esto no solo beneficia a los diseñadores y constructores, sino también a los inversores y revisores, quienes pueden comprender mejor el proyecto y tomar decisiones informadas.
Tabla Comparativa: Vistas Arquitectónicas Clave
Para entender mejor el rol de las secciones, es útil ver cómo se comparan con otras vistas esenciales en un proyecto de construcción:
| Vista | Descripción | Información Clave |
|---|---|---|
| Plano (Plano de Planta) | Vista bidimensional desde arriba, como si se cortara horizontalmente a la altura de las ventanas. | Distribución de espacios, dimensiones horizontales, ubicación de muros, puertas, ventanas, mobiliario fijo. |
| Sección | Vista bidimensional desde el lado, como si se cortara verticalmente de arriba abajo. | Altura de techos, suelos, vigas, relación entre niveles, composición de muros/suelos/techos, escaleras, estructura vertical. |
| Elevación | Vista bidimensional del exterior de una fachada. | Aspecto exterior del edificio, ubicación y diseño de puertas y ventanas, materiales de fachada, alturas exteriores. |
| Callout (Detalle Constructivo) | Vista ampliada de una parte específica del diseño. | Detalles de encuentros, uniones, materiales específicos, instalaciones, con alto nivel de detalle y acotación. |
Cada una de estas vistas es indispensable y complementaria. Las secciones, en particular, proporcionan la 'radiografía' del edificio, revelando su esqueleto y órganos internos.
Preguntas Frecuentes sobre Cortes y Secciones
- ¿Cuál es la principal diferencia entre un corte y una sección en dibujo?
- En el contexto arquitectónico, a menudo se usan indistintamente para referirse a una vista vertical del interior del edificio. Técnicamente, una sección podría referirse solo a la superficie de corte, mientras un corte muestra la superficie de corte y lo que hay detrás. Sin embargo, la práctica común varía.
- ¿Por qué no basta con los planos de planta y elevaciones?
- Los planos de planta muestran la distribución horizontal y las elevaciones el exterior. No revelan la estructura interna, las alturas entre pisos, la composición de los elementos constructivos ni la relación vertical entre espacios, información que solo las secciones proporcionan.
- ¿Se usan secciones en todos los tipos de construcción?
- Sí, las secciones son fundamentales en cualquier proyecto de construcción, desde una pequeña reforma hasta un gran edificio, y son especialmente importantes en construcciones complejas o con sistemas constructivos no convencionales, como las casas prefabricadas.
- ¿Cómo se indica un corte o sección en un plano?
- Se utilizan líneas de corte en los planos de planta o en otras vistas para indicar dónde se ha realizado el corte imaginario y en qué dirección se está mirando. Estas líneas suelen tener flechas en los extremos y una etiqueta que identifica la sección correspondiente.
- ¿Las secciones muestran los materiales?
- Sí, las secciones suelen mostrar los diferentes materiales que componen los elementos constructivos (muros, suelos, techos) utilizando diferentes tipos de sombreado o 'hatching', o mediante etiquetas y notas.
Conclusión
Los cortes y secciones, entendidos como herramientas de dibujo para visualizar el interior de objetos y edificios, son pilares de la comunicación técnica en arquitectura y construcción. Permiten a diseñadores y constructores 'ver a través' de las superficies, revelando la estructura oculta, los materiales y los detalles de ensamblaje que son vitales para una ejecución precisa y exitosa.
Especialmente en el campo de las casas prefabricadas, donde la composición de los elementos y las conexiones son clave, las secciones proporcionan la claridad necesaria para asegurar la calidad tanto en la fabricación como en el montaje. La integración de tecnologías como BIM ha llevado la precisión, coordinación y eficiencia en la creación y uso de estas vistas a un nivel superior, garantizando que todos los actores del proyecto tengan una comprensión completa y coherente de lo que se va a construir. Dominar la lectura e interpretación de secciones es, sin duda, un paso fundamental para comprender cualquier proyecto constructivo.
Si quieres conocer otros artículos parecidos a Corte vs Sección: Vistas Clave en Construcción puedes visitar la categoría Construccion.
